Пример документации

Так выглядит качественный проект

Мы подготовили для вас фрагменты реального проекта каркасного дома. Листайте вниз, чтобы оценить детализацию узлов, архитектурные решения и ведомости материалов.

АР2

Содержание, конструкции

Содержание, конструкции
АР3

Пояснительная записка

Пояснительная записка
АР4

План этажа, ведомость помещений, пирог пола

План этажа, ведомость помещений, пирог пола
АР4

Планы с маркировкой окон и дверей

Планы с маркировкой окон и дверей
АР8

Фасады

Фасады
АР11

Разрез, пироги стен

Разрез, пироги стен
АР12

План кровли, ведомость скатов

План кровли, ведомость скатов
АР13

3д виды

3д виды
АР15

3д вид без кровли

3д вид без кровли
АР16

Тех показатели

Тех показатели
АР17

Теплотехника

Теплотехника
КР1

Титульный лист

Титульный лист
КР2

Содержание

Содержание
КР3

Пояснительная записка

Пояснительная записка
КР4

Пироги стен, крыши, перекрытий

Пироги стен, крыши, перекрытий
КР5

Разрез

Разрез
КР7

Спецификация материалов

Спецификация материалов
КР8

Рекомендации к закупке

Рекомендации к закупке
КР9

Рекомендации к закупке

Рекомендации к закупке
КР10

Иллюстрации спецификации

Иллюстрации спецификации
КР11

Иллюстрации спецификации

Иллюстрации спецификации
КР12

Иллюстрации спецификации

Иллюстрации спецификации
КР13

Фундамент

Фундамент
КР14

План свайного поля

План свайного поля
КР15

Обвязка свай

Обвязка свай
КР16

План обвязки

План обвязки
КР17

Балки обвязки

Балки обвязки
КР19

Узлы обвязки

Узлы обвязки
КР21

Цокольное перекрытие

Цокольное перекрытие
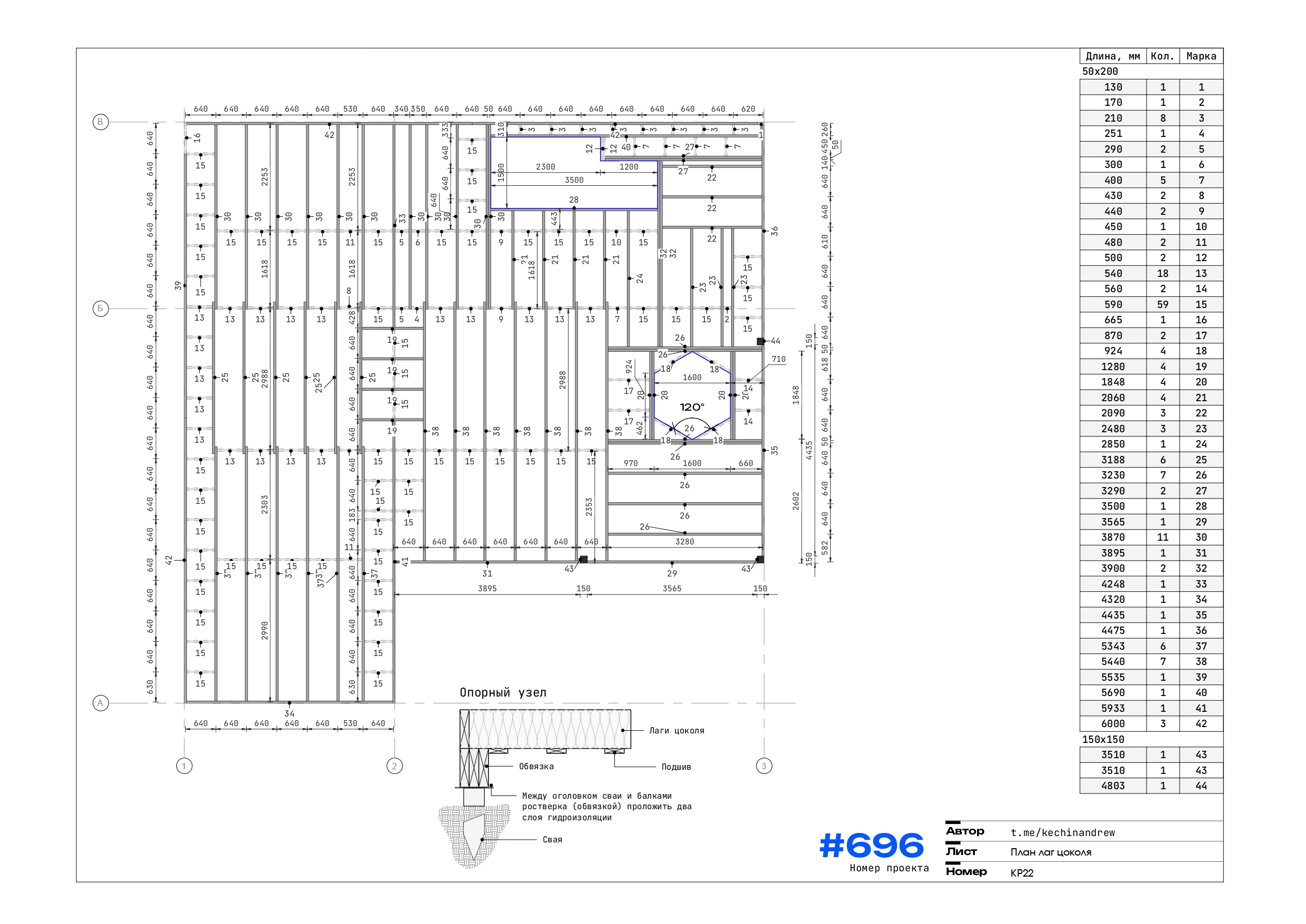
КР22

План лаг пола

План лаг пола
КР24

Узлы лаг

Узлы лаг
КР25

Крепление столбов к обвязке

Крепление столбов к обвязке
КР26

Крепление столбов к ригелю

Крепление столбов к ригелю
КР27

Стены

Стены
КР28

План стен

План стен
КР29

Развертка стены

Развертка стены
КР30

Развертка стены

Развертка стены
КР44

Узлы стен

Узлы стен
КР45

Узлы стен

Узлы стен
КР48

Чердачное перекрытие

Чердачное перекрытие
КР50

Узлы ригелей

Узлы ригелей
КР51

Фронтоны, мауэрлат, столбы

Фронтоны, мауэрлат, столбы
КР52

Фронтоны, мауэрлат, столбы

Фронтоны, мауэрлат, столбы
КР57

Коньковая балка

Коньковая балка
КР58

Конек

Конек
КР59

Стропила

Стропила
КР60

План стропил

План стропил

Убедились в качестве?

Переходите в каталог, чтобы выбрать готовый проект, или оставьте заявку на индивидуальное проектирование с нуля.

Получить расчет

Бонус за заявку Закрепите за собой бесплатную адаптацию фундамента и расчет точной сметы в 3-х комплектациях.
Или напишите нам