Полный каталог чертежей
Удобство и безопасность
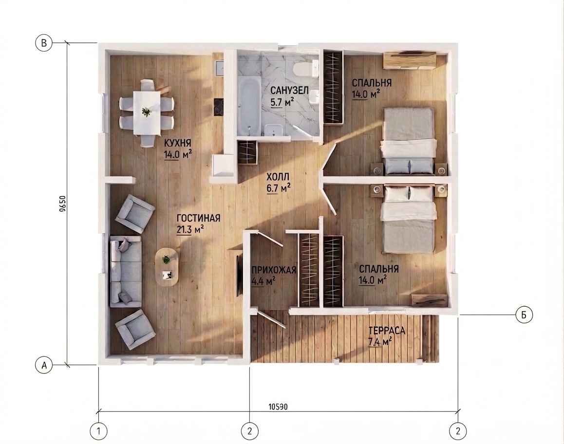
Для небольших участков
Разработка с нуля
Для заводской сборки
Проверка чужих чертежей
Эскизник для банка
Расчет прогиба и нагрузок
Точка росы и отопление
Конструктор фундамента